La Mare Houseboat – Modèle Apart XXL Le La Mare Apart XXL est une résidence flottante de très grand volume, largeur 5 m et longueur 15 m, offrant près...
La Mare Houseboat – Modèle Apart XXL
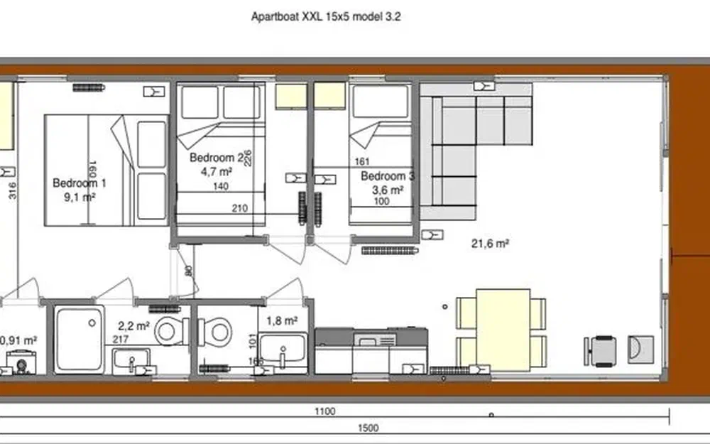
Le La Mare Apart XXL est une résidence flottante de très grand volume, largeur 5 m et longueur 15 m, offrant près de 50 m² habitables. C’est l’un des plus grands modèles de la gamme La Mare, idéal pour une vie à bord toute l’année, une grande famille, ou un projet locatif haut rendement. Conçu pour naviguer sur canaux, rivières, lacs et fleuves, il apporte stabilité, confort et un espace intérieur remarquable.
Données techniques Largeur : 5,00 m Longueur : 15,00 m Surface habitable : 11 m × 4,50 m (49,5 m²) Hauteur au-dessus de l’eau : 2,90 – 3,00 m Tirant d’eau : 0,40 – 0,50 m Hauteur intérieure : 2,18 m Catégorie CE : D Structure : catamaran polyéthylène sur cadre acier galvanisé
Équipement standard • Flotteurs catamarans polyéthylène sur structure acier • Construction bois, vitrages sécurisés, fenêtres aluminium, vitrines latérales • Façade extérieure PVC ou bois scandinave • Réservoir d’eau douce 1000 L + pompe auto-amorçante • Réservoir d’eaux usées 1000 L avec capteurs • Coffre pour 2 bouteilles de gaz • Installation électrique, antenne TV, pré-installation audio • Chauffage à gaz avec radiateurs muraux • Terrasse avant en bois scandinave avec rampes aluminium • Isolation mousse 5 cm • Plafond PVC éclairage LED • Sol vinyle • Fibre de verre peinte • Salle d’eau : douche, meuble vasque, WC électrique, ventilation • Cuisine 160 cm : meubles haut/bas, éclairage, plaque gaz 2 feux, évier, frigo 230 V • Cinq portes intérieures avec hublots • Six taquets • Échelle de bain
Équipement additionnel – options possibles • Sauna • Barbecue • Ancre • Toit-terrasse avec escalier et rampes repliables • Garde-corps inox • Chauffage au sol • Amarres, défenses caoutchouc • Tringles à rideaux • Siège pilote • Groupe électrogène silencieux 3 kW • Pack hiver (protection antigel) • Salon équipé : canapé-lit, table, 4 chaises, table basse, commode • Trois chambres : lit double + placards intégrés • Quatrième chambre possible • Éclairage LED extérieur (2 × 10 m) + spots terrasse • TV 32" avec antenne Glomex • Radio + haut-parleurs • Isolation renforcée 7,5 cm • Rideaux et stores plissés • Climatisation split 2 kW • Porte de chambre supplémentaire • Lave-vaisselle • Système de traitement d’eau 25 L/min • Toilette écologique • Micro-station 150 L/jour • Pompe de cale
Équipement de navigation • Motorisation : Yamaha 2 × 25 ch High Thrust, batterie 65 Ah • Console de pilotage blanche ou grise • Pack photovoltaïque : 4 panneaux 310 W • Système Power standard : onduleur 2400 W + 4 batteries • Caméra arrière • Feux de navigation et signal sonore • Réservoir carburant 100 L • Sondeur
Contact en France – Lion Yachting Agent officiel La Mare Houseboats Port Camargue – Le Grau-du-Roi
Accompagnement complet : options, financement, transport, installation, mise en service et gestion locative.
Disponibilité
Apart XXL disponible : • sur commande • en stock selon arrivages • en occasion selon disponibilités
Un crédit vous engage
et
doit être remboursé. Vérifiez vos capacités de remboursement avant de vous engager.
Mentions Légales
Un crédit vous engage et doit être remboursé. Vérifiez vos capacités de
remboursement avant de vous engager.
Aucun versement, de quelque nature que ce soit, ne peut être exigé d'un particulier avant l'obtention
d'un ou plusieurs prêts d'argent.
Exemple de financement en crédit ballon sur une durée de 180 mois,
pour le financement d'un « ANTARES 11 FLY » au prix de vente de
291 000,00 € TTC – Apport de
145 500,00 €, soit un montant total du crédit de : 145 500,00 €. Ce crédit est
consenti au
TAEG fixe de 6,75% et au taux débiteur fixe de 6,55%. Vous remboursez 179 mensualités de 1
195,81
€, suivies d'une dernière mensualité de 29 100,00 € soit un coût
total du crédit de 97 649,99 € (dont 0 € de frais de dossier et
97 649,99 € d'intérêts) et un
montant total dû de
243 149,99 €. Exemple
hors assurances et prestations facultatives.
Coût de l'assurance facultative des personnes [décés et Perte Totale et Irréversible d'Autonomie] :
Taux Annuel Effectif de l'Assurance (TAEA) 0,93% soit
€ TTC / mois en sus de l'échéance, soit
un montant total dû de € TTC au titre de cette
assurance sur la durée totale du
financement. Tarification pour une personne âgée de 18 à 66 ans inclus, éligible aux conditions
d'adhésion. Si votre état de santé ne vous autorise pas à bénéficier des conditions d'assurances
standardisées, la convention AERAS vous permet de disposer de solutions adaptées, sous réserve
d'éligibilité vérifiable sur le site www.aeras-infos.fr. Notre référent AERAS est à disposition au
03 59 39 61 38. Contrat d'assurance collective « Assurances des Personnes » souscrit par CGI FINANCE
auprès de SOGECAP, entreprise régie par le Code des assurances. Contrat présenté par CGL, courtier
d'assurance, n° ORIAS 07027148 (www.orias.fr) via ses mandataires. .
Offre valable du
25/02/2026 au 25/03/2026
pour tout financement en crédit. Offre soumise à conditions
et réservée aux particuliers, valable pour tout modèle de bateau neuf ou d'occasion chez tous les
distributeurs participants.
Sous réserve d'acceptation par CGL, Compagnie Générale de Location d'Equipements, CGI
Finance, SA au capital de 58 606 156 euros – SIREN 303 236 186 RCS Lille Métropole – 69 avenue de
Flandre 59708 Marcq-en-Barœul Cedex. CGL est une société du Groupe Société Générale.
CGI Finance est le partenaire financier de BateauAVendre.fr.
Un crédit vous engage et doit être remboursé. Vérifiez vos capacités de
remboursement avant de vous engager.
Aucun versement, de quelque nature que ce soit, ne peut être exigé d'un particulier avant l'obtention
d'un ou plusieurs prêts d'argent.
Exemple de financement en Location avec Option d'Achat (LOA) sur une durée de 180 mois pour le financement d'un « ANTARES 11 FLY
» au prix de vente de 291 000,00 € TTC. Apport
comptant de 145 676,73 € TTC, placé en 1er loyer majoré, suivis
de
179 loyers mensuels de 1
253,01 € TTC. Après le paiement du dernier loyer, vous pouvez restituer votre
bateau selon les conditions prévues au contrat ou l'acquérir en levant l'option d'achat. Option
d'achat : 29 100 € TTC. Montant total dû avec achat en fin de
contrat : 398 888,79 € TTC avec les frais de dossier à 0
€ TTC. Exemple hors assurances et prestations facultatives.
Coût de l'assurance facultative des personnes [décés et Perte Totale et Irréversible d'Autonomie] :
Taux Annuel Effectif de l'Assurance (TAEA) 0,93% soit 58,20 € TTC / mois en sus de l'échéance, soit
un montant total dû de 10 476,00 € TTC au titre de cette
assurance sur la durée totale du
financement. Tarification pour une personne âgée de 18 à 66 ans inclus, éligible aux conditions
d'adhésion. Si votre état de santé ne vous autorise pas à bénéficier des conditions d'assurances
standardisées, la convention AERAS vous permet de disposer de solutions adaptées, sous réserve
d'éligibilité vérifiable sur le site www.aeras-infos.fr. Notre référent AERAS est à disposition au
03 59 39 61 38. Contrat d'assurance collective « Assurances des Personnes » souscrit par CGI FINANCE
auprès de SOGECAP, entreprise régie par le Code des assurances. Contrat présenté par CGL, courtier
d'assurance, n° ORIAS 07027148 (www.orias.fr) via ses mandataires. .
Offre valable du
25/02/2026 au 25/03/2026
pour tout financement en LOA. Offre soumise à conditions et réservée aux particuliers, valable
pour tout modèle de bateau neuf ou d'occasion chez tous les distributeurs participants.
ous réserve d'acceptation par CGL, Compagnie Générale de Location d'Equipements, CGI
Finance, SA au capital de 58 606 156 euros – SIREN 303 236 186 RCS Lille Métropole – 69 avenue de
Flandre 59708 Marcq-en-Barœul Cedex. CGL est une société du Groupe Société Générale. CGI Finance est
le partenaire financier de
BateauAVendre.fr.
Un crédit vous engage et doit être remboursé. Vérifiez vos capacités de
remboursement avant de vous engager.
Aucun versement de quelque nature que ce soit ne peut être exigé d'un particulier avant l'obtention
d'un ou plusieurs prêts d'argent.
Exemple de Locassurance Marine(2) : financement en Location avec Option d'Achat (LOA) sur une
durée de 180 mois pour le financement d'un ANTARES 11 FLY
au prix de vente de 291 000,00 € TTC . Apport comptant
de
145 676,73 € TTC, placé en 1er loyer majoré (assurance
plaisance Helvetia Yacht comprise et à votre charge (3)) suivis de 179 loyers mensuels de 1
429,74 € TTC (assurance plaisance Helvetia Yacht comprise et à votre charge(3)).
Après le paiement du dernier loyer, vous pourrez restituer votre bateau selon les conditions prévues
au contrat ou l'acquérir en levant l'option d'achat. Option d'achat : 29
100 € TTC. Montant total dû avec achat en fin de contrat : 430 700,19 € TTC (assurance plaisance Helvetia Yacht
comprise) avec les frais de dossier à 0 €. Coût de l'assurance plaisance Helvetia Yacht de 176,73 €/mois TTC soit un montant total dû de 31 811,40 € TTC sur la durée totale du financement. Exemple
hors assurance facultative des Personnes. Coût de l'Assurance facultative des Personnes proposée
(4)(garanties couvertes : Décès et Perte totale et irréversible d'autonomie) : 58,20 € TTC/mois qui s'ajoute au montant des loyers
mensuels ci-dessus soit un montant total dû de 10476,00
€ TTC au titre de cette assurance sur la durée totale du financement.
(2) Offre valable du
25/02/2026 au 25/03/2026
pour tout financement en Locassurance. Offre soumise à conditions et réservée aux particuliers,
valable pour tout modèle de bateau neuf ou d'occasion dont le prix de vente est compris entre 10 500
€ TTC et 500 000 € TTC.
Sous réserve d'acceptation par CGL, Compagnie Générale de Location d'Equipements, CGI Finance, SA au
capital de 58 606 156 euros – SIREN 303 236 186 RCS Lille Métropole – 69 avenue de Flandre 59708
Marcq-en-Barœul Cedex. CGL est une société du Groupe Société Générale. Pour plus d'informations sur
ces conditions, veuillez-vous rapprocher de votre conseiller
CGI Finance.
(3) Contrat d'assurance collective de dommages « Assurance Plaisance Helvetia Yacht » souscrit par
CGI FINANCE auprès d'HELVETIA ASSURANCES SA. Contrats présentés par CGL, courtier d'assurance, n°
ORIAS 07027148 (www.orias.fr) via ses mandataires.
(4) Tarification pour une personne âgée de 18 à 59 ans inclus, éligible aux conditions
d'adhésion. Si votre état de santé ne vous autorise pas à bénéficier des conditions d'assurances
standardisées, la convention AERAS vous permet de disposer de solutions adaptées, sous réserve
d'éligibilité vérifiable sur le site www.aeras-infos.fr. Notre référent AERAS est à disposition au
03 59 39 61 38. Contrat d'assurance collective « Assurances des Personnes » souscrit par CGI FINANCE
auprès de SOGECAP, entreprise régie par le Code des assurances. Contrat présenté par CGL, courtier
d'assurance, n° ORIAS 07027148 (www.orias.fr) via ses mandataires.